Kyomachiya Steps from Nijo Castle
Introduction


Just across the street from Nijo Castle—an exceptional location. Yet, rather than being in the middle of a bustling tourist area, the surroundings have a calm, lived-in atmosphere, with small shops and supermarkets nearby that bring a sense of everyday Kyoto life.
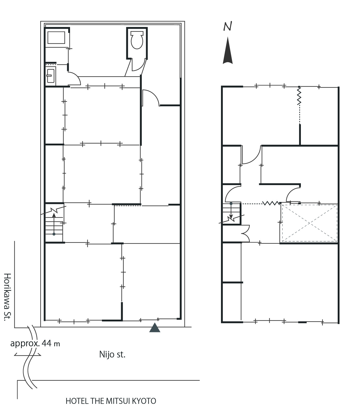
Nestled between buildings, this Kyomachiya still stands with a dignified presence. It retains traditional features such as the ichiretsu-yonshitsu (four-room row layout), hibukuro (open ceiling space), and a small garden—embodying the distinctive charm of Kyomachiyas.


Plan
The house was once used for business, with a spacious earthen floor (doma) extending from the entrance to the kitchen area. With its classic ichiretsu-yonshitsu layout and a garden at the rear, this property offers an authentic Kyomachiya atmosphere—ideal for renovation into a simple lodging or other creative uses that make the most of its Kyoto character.
Photos
Click thumnails to enlarge photos.
Area
This property is located just across Horikawa Street from Nijo Castle, a UNESCO World Heritage site. Opposite stands the luxury hotel HOTEL THE MITSUI KYOTO, in an area frequented by many visitors. The neighborhood is dotted with small local shops, making it enjoyable to explore on foot, and offers convenient access to both bus stops and subway stations within walking distance.
Virtual Tour
Drag/Swipe the screen, or click the arrows on the screen to tour.
Details
| Property Price | 110,000,000 JPY (Approx. USD *1JPY= USD) |
|---|---|
| Type & Conditions | Old House (Kyomachiya) |
| Location | 306-3 Yawatacho, Nakagyo Ward, Kyoto |
| Transportation | Approx. 3 min. walk from Exit 2 of Subway Tozai-line "Nijojo-mae Sta." |
| Land Area | 【Registered】83.53sqm |
| Private Street Area Included | N/A |
| Floor Area | 【Registered】1F: 59.40 sqm, 2F: 45.38 sqm, Total: 104.78 sqm |
| 【Actual/Tape measured】1F:66.69sqm 2F:51.65sqm Total:118.34sqm (approx. number) | |
| Building Structure | Two Storey Wooden House |
| Building Date | Unspecifiable (The earliest record in the closed registry is 1906) |
| Size | 5 Kitchen + Storeroom |
| Adjoining Street | Street Width(public road) : 6.67m, Frontage: 6.75m, Direction: South (approx. number) |
| Public Utility | Electricity, Water Plumbing In/Out, City Gas |
| Land Use District | Commercial District |
| Legal Restrictions | 15m / Category 4 Height Control District, Quasi-Fire Prevent District, Aesthetic District of Historical Heritage, General District、Close View Preservation Zone, Prior Consultation Zone, Distant View Preservation Zone, Aesthetic District of Historical Heritage (Category II), Urban Function Attraction Area, Residence Attraction Area, Designated Area based on the Kyomachiya Ordinance, Established Urban Area, Housing Land Development Construction Regulated Area |
| Handover/Current Situation | Immediately/Vacant |
| Building Coverage Ratio/Floor Area Ratio | 80%/520%(approx. number) |
| Land Category/Geographical Features | Residential Land/Flatland |
| Land Tenure/Notification According to National Land Utilization Law | Title/Not Required |
| Elementary School/Junior High School | Gosho Minami Elementary School (approx. 17 min. walk/1,300m)/Kyoto Oike Junior High School (approx. 17 min. walk/1,300m) |
| City Planning Act | Urbanization Promotion Area |
| Remarks | ※Renovation work is required due to it's aged deterioration. ※The seller is not liable for any defects. ※Under the Machiya Preservation Ordinance, this property is located within a designated district where demolition of the building requires submitting a demolition notice at least one year prior to the commencement of work. ※The property will be handed over as is. ※The property will be sold as is, with all remaining items and furnishings left inside the house. |
| Transaction Terms | Hachise as a Broker (Agent commission required when concluding contract) |
| Sales Representative | (EN) Boa Zhang / Aya Kito / Kokoro Naka / Yohei Fukagawa (JP) Hiroyasu Fukui |
| Information updated | Nov 11, 2025 |
| Information will be updated | Nov 17, 2025 |


















