Authentic Japanese Estate with Garage
Introduction


This estate comprises a traditional Japanese residence centered around a garden and a spacious two-story garage building. The main house showcases refined Japanese details, while the garage building offers flexible use for retail, a gallery, a studio, or storage on the first floor, with the second floor suitable as a study or reception room. Ideal for car enthusiasts or those seeking generous, versatile space.
The landscaped approach creates a tranquil atmosphere, while the spacious garden—viewed from the engawa—offers views of seasonal plants and greenery, ideal for enjoying nature at home.


Plan
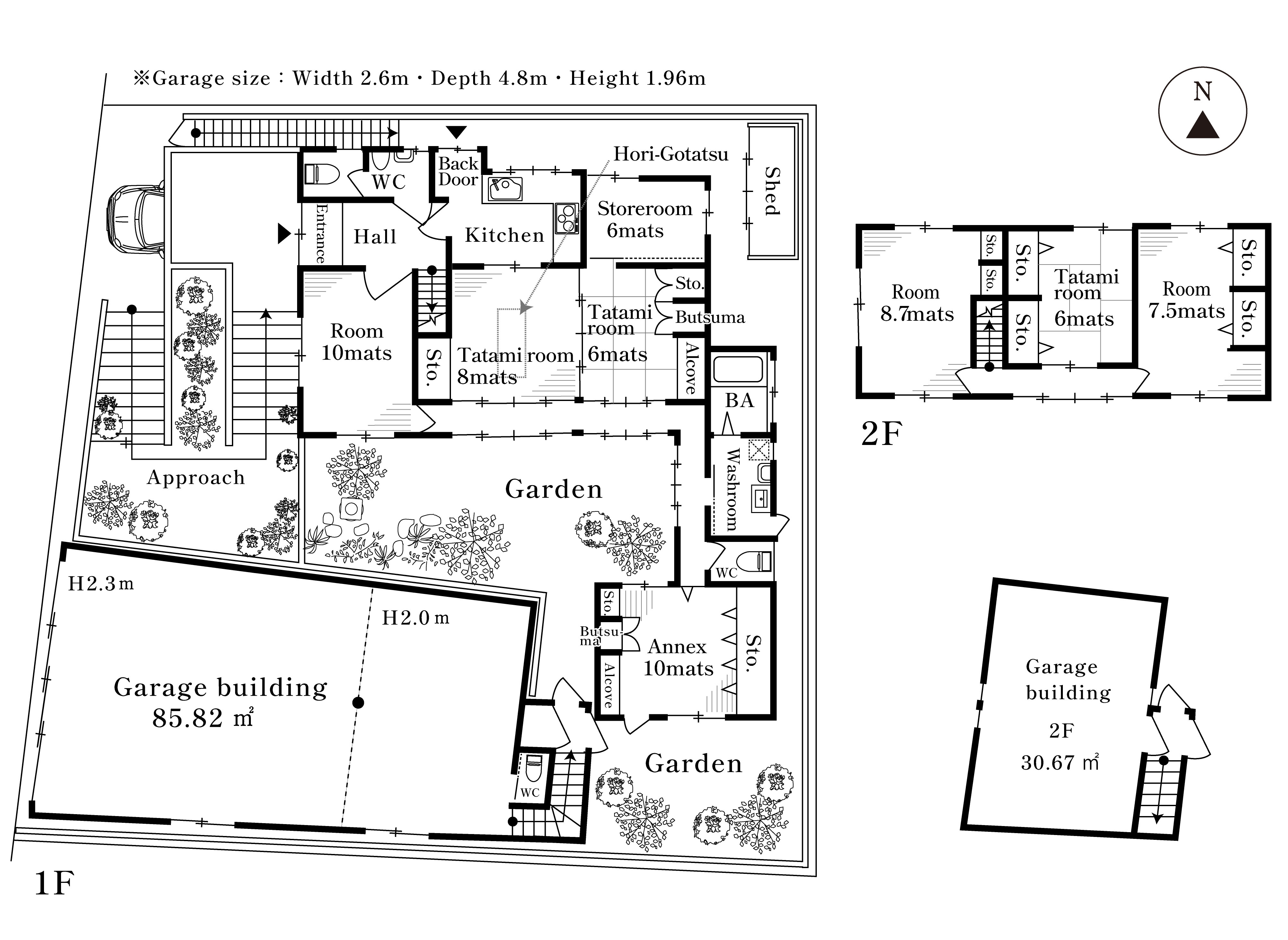
Each room is generously sized, creating a relaxed and comfortable sense of space throughout the home. The interiors feel bright and open, and residents can unwind while enjoying views of the beautifully maintained garden.
The property faces a wide road and is well located at the foot of the mountains, allowing soothing natural views from the second floor. With a large number of rooms, the home comfortably accommodates family living as well as visiting guests. The property has the scale and ambiance of a private ryokan-style residence. Modern accessibility measures have been implemented, including largely step-free flooring, handrails at key points, and a powered lift on the exterior staircase.
Photos
Click on a small picture to view a larger version.
Area
The property enjoys convenient access to expressways, located approximately 2.9 km from the Kyoto-Higashi Interchange on the Meishin Expressway and about 3.6 km from the Yamashina exit of the Kamogawa-Higashi Interchange on the Daini Keihan Road. This location allows easy travel to the Greater Tokyo area as well as Osaka and Kobe.
Public transportation is also available, with subway and bus routes providing smooth access to central Kyoto. From Nagitsuji Station on the Subway Tozai Line, it is approximately a 4-minute ride to Yamashina Station, one of the area’s major stations. From JR Yamashina Station, Kyoto Station can be reached in about 5 minutes, with convenient connections and direct services to both the Osaka and Shiga areas.
The neighborhood is also rich in history, surrounded by notable sites such as Bishamondo Temple, Daigoji Temple, the mausoleum of Emperor Tenji, and the former site of Yamashina Honganji. Despite this historical setting, the area offers a calm residential environment with supermarkets, restaurants, and other daily conveniences close at hand, making everyday shopping and dining easy and comfortable.

Details
| Property Price | 74,800,000 JPY (Approx. USD *1JPY= USD) |
|---|---|
| Type & Conditions | Old House |
| Location | Otsuka Dannoura, Yamashina Ward, Kyoto |
| Transportation | Approx. 1 min. walk from Keihan Bus "Otsuka Dannoura Stop" |
| Approx. 18 min. walk from Subway Tozai-line "Nagitsuji Sta." | |
| Land Area | 【Registered】406.52 sqm |
| Private Street Area Included | N/A |
| Floor Area | 【Registered】Total:319.81 sqm Main building:1F/129.22 sqm, 2F/53.28 sqm Garage house:1F/90.87 sqm, 2F/30.67 sqm Garage:15.77 sqm |
| Building Structure | Two Storey Wooden House |
| Building Date | Main building/November, 1975 ・ Garage building/August, 2004 |
| Size | 7 rooms + Kitchen + 2 Storeroom + Garage + Garden |
| Adjoining Street | Street Width : 11.00m, Frontage: 19.27m, Direction: West (approx. number) |
| Public Utility | Electricity, Water Plumbing In/Out, City Gas |
| Land Use District | Category 1 Residential District |
| Legal Restrictions | 15m / Category 2 Height Control District, Piedmont Building Special Preservation and Improvement District, Fushimi/Yamashina Area, Outdoor Advertisement Category 2 Regulatory District, Residence Attraction Area, Suburban Development Control Area, Housing Land Development Construction Regulated Area |
| Handover | TBD |
| Current Situation | Vacant |
| Building Coverage Ratio | 60% |
| Floor Area Ratio | 200% |
| Land Category | Residential Land, Woodland, Miscellaneous Land (Current land use: Residential Land) |
| Geographical Features | Highland |
| Land Tenure | Title |
| Notification According to National Land Utilization Law | Not Required |
| Elementary School | Otsuka Elementary School (approx. 12 min. walk/930m) |
| Junior High School | Otowa Junior High School (approx. 11 min. walk/860m) |
| City Planning Act | Urbanization Promotion Area |
| Remarks |
※A detached annex and washroom were added in 1990. / The main house underwent a full interior and exterior inspection and renovation in 2004. ※Furniture is not included in the property price. ※The seller is not liable for any defects. ※The property will be handed over as is. |
| Transaction Terms | Hachise as a Broker (Agent commission required when concluding contract) |
| Sales Representative | (EN) Boa Zhang / Aya Kito / Kokoro Naka / Yohei Fukagawa (JP) Tomohiko Kubotera |
| Information updated | Jan 13, 2026 |
| Information will be updated | Jan 26, 2026 |















































